您的位置是:首页>房产>布里斯班

近格里菲斯大学联排别墅

类型   联排别墅

位置   布里斯班 - Mount Gravatt East

价格   50 - 60万澳元

交房   2018年初

项目介绍

该联排别墅项目在Mount Gravatt East区域,因为靠近Garden City西田购物中心以及格里菲斯大学而闻名;是一个基建成熟,生活便利的区域。该项目建成共10套联排别墅,分别是6套三层别墅和4套两层别墅。其中6套的三层别墅是对着街道,设计成类似独立别墅般的开放式院子。


包括所有户型的租金预测在440 - 650澳元/周之间。


室内设计注重空间感,明亮的风格会让住户心旷神怡。装修风格借鉴于独立别墅,144 - 215平方米的室内面积,东北朝向,院子直通街道。客厅和主卧室都配有空调,客厅、厨房、楼梯都使用高级木地板。厨房配备石板准备台、欧洲五金器具等。其他房间都配有吊扇。


展开

项目图片

左右滑动加载图片,点击可放大

项目位置

Mount Gravatt East位于布里斯班市中心的东南方向9公里处,所在位置被多所学校及购物中心包围。

展开

位置图

左右滑动加载图片,点击可放大

周边设施

  • 交通

    公交车站 - 300米

    上M3高速公路 - 5分钟车程

    布里斯班市中心 - 13分钟车程

    布里斯班机场 - 25分钟车程

  • 教育

    Mansfield州立中学(排名第二的公校) - 6分钟车程

    Cavendish Road州立中学(评分97分) - 6分钟车程

    格里菲斯大学 - 6分钟车程

    Citipointe私立学校(排名第二的私校) - 8分钟车程

    昆士兰科技大学 - 12分钟车程

    昆士兰大学 - 23分钟车程

  • 医疗

    Green Slopes私人医院 - 3.8公里

    Belmont私人医院 - 4公里

    亚历山大公主医院 - 5.7公里

  • 娱乐

    太平洋高尔夫球俱乐部 - 3公里

    购物中心各电影院、健身房、图书馆等

  • 购物

    Mount Gravatt购物中心 - 750米

    Garden City西田大型购物中心 - 3公里

    Carindale西田大型购物中心 - 4公里

展开

推荐户型

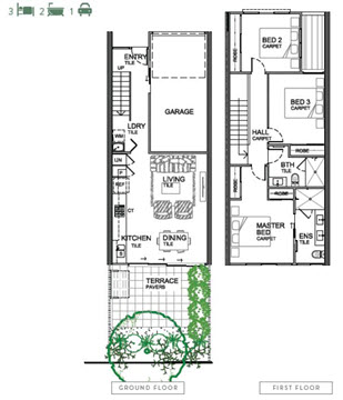
  • 两层户型1
    两层户型1
    3卧室 2卫浴 1车库
    143平米
    54万澳元
  • 两层户型2
    两层户型2
    4卧室 2卫浴 2车库
    215平米
    60万澳元
  • 三层户型1
    三层户型1
    2卧室 2卫浴 2车库
    191平米
    52万澳元
  • 三层户型2
    三层户型2
    3卧室 2卫浴 2车库
    174平米
    54万澳元