您的位置是:首页>房产>布里斯班

华人区稀有联排别墅

类型   联排别墅

位置   布里斯班 - Sunnybank华人区

价格   全部售罄

交房   2018年底

项目介绍

该项目是一个总投资6亿澳元,占地10公顷的住宅开发项目。十年期间,将建成1200户新居。这样的规模是昆士兰最大的城郊改建项目,会逐渐发展成为一个可持续的多元化的一个社区。

展开

项目图片

左右滑动加载图片,点击可放大

项目位置

Sunnybank位于布里斯班中央商务区以南约11公里处。布里斯班的多元文化中心之一,娱乐和零售设施都非常完善。有几个主要的购物中心,包括Sunnybank Plaza、Sunnybank Market Square、Sunnybank Hills Shopping town和布里斯班最大的购物中心之一 - 西田大型购物中心。

展开

位置图

左右滑动加载图片,点击可放大

周边设施

  • 交通

    公车站、火车站 - 5分钟步行

    Sunnybank华人中心 - 3分钟车程

    布里斯班市中心 - 16分钟车程

  • 教育

    Sunnybank公立中学 - 1.5公里

    Coopers Plains公立中学 - 1.7公里

    格里菲斯大学 - 3公里

  • 医疗

    QE2公立医院 - 1.7公里

    Sunnybank私立医院 - 2.5公里

  • 购物

    Sunnybank华人商区 - 1.4公里

    西田大型购物中心 - 3公里

展开

推荐户型

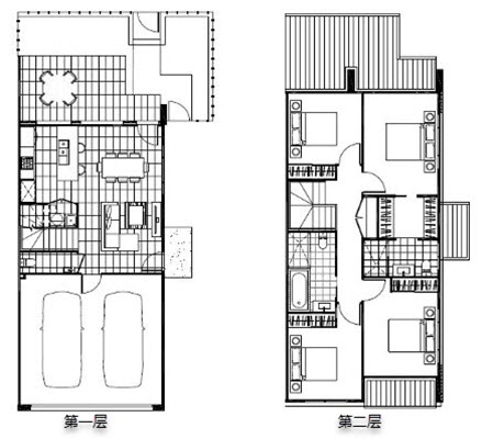
  • 两层户型
    两层户型
    4卧室 2.5卫浴 2车库
    176平米
    58.5万澳元
  • 三层户型
    三层户型
    3卧室 3卫浴 2车库
    206平米
    52.5万澳元