您的位置是:首页>房产>布里斯班

布里斯班近市中心西人社区别墅

类型   别墅

位置   布里斯班 Upper Kedron

价格   全部售罄

交房   6个月建房时间(土地于2019年4月登记)

项目介绍

该项目是距布里斯班仅12公里的一个全新规划的社区,由著名开发商Cedar Woods开发,距离Upper Kederon的D’Aguilar 国家公园仅1.8公里,周边拥有91公顷的自然保护带和壮阔的生活环境,四周被独特的自然山景围绕,是一个优美的山景别墅区,社区内规划化的绿化面积达到40%(澳洲法定的项目绿化面积为15%)。

展开

项目图片

左右滑动加载图片,点击可放大

项目位置

通往布里斯班市中心交通便利、四通八达,距布里斯班机场只要23公里。公共交通咫尺可达,距火车站4公里,紧邻巴士路线,使得这里即靠近都市的繁华,又享有宁静的生活,该项目提供了超越以往的另类优越生活方式。

该项目坐落在昆士兰布里斯班Upper Kederon区,该区域的澳洲本土人士占85%,接近95%的人口构成为西人社区(澳洲英国新西兰),周边公共配套成熟,教育资源丰富。


展开

位置图

左右滑动加载图片,点击可放大

周边设施

  • 交通

    布里斯班机场 - 28分钟车程

    布里斯班市中心 - 26分钟车程

    367路公交车站 - 200米

    Ferry Grove火车站 - 4.1公里

  • 教育

    圣安德鲁私立学校 - 3分钟车程

    圣彼得私立学校 - 11分钟车程

    GAP公立学校 - 13分钟车程

  • 医疗

    西北私立医院 - 17分钟车程

    查尔斯王子私立医院 - 23分钟车程

  • 公园

    克德龙自然保护区 - 3分钟车程

  • 购物

    Arana 购物中心 - 12分钟车程

    BCF 区域购物中心 - 9分钟车程

展开

推荐户型

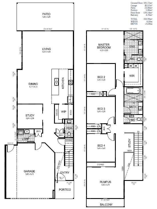
  • 户型1
    户型1
    4房2卫2车库
    252.77平米
    66.9万澳元
  • 户型2
    户型2
    4房2.5卫2车库
    320平米
    71.5万澳元

投资前景

社区规划多达40%的总占地面积为绿地空间,致力于打造一个树木环绕的森系生活空间。社区高度追求都市与户外生活的和谐,提供给广大家庭居住于山丘与峡谷之间,穿梭于自然保护带与树林之间的梦想家园。

该区域的周租金可达540澳币每周,租金回报在4.6%,高租金回报,为您的物业投资打下正向现金流基础。该地区别墅空置率仅为1.1%,仅为澳洲别墅平均空置率2.5%的一半,超低的空置率也说明了该区域对房产的需求非常旺盛,这也是促进房价上涨的原因之一。


展开