您的位置是:首页>房产>布里斯班

富人区高尔夫球场旁高档联排

类型   联排别墅

位置   布里斯班 Cannon hill

价格   全部售罄

交房   2020年6月

项目介绍

项目特点一:全新顶级高尔夫球场旁


该项目位于布里斯班东区,布里斯班市政在该区域修建了全新的高尔夫球场,拥有内部绿色庭院和游泳池,并且西部和北部有丛林覆盖,绿化度极高,东部有高尔夫球场环绕,环境十分优美,空气特别的纯净。




项目特点二:设计汲取经典中世纪现代建筑理念


该项目开发商设计汲取经典的中世纪现代建筑的设计理念,同时仍然拥有当代布里斯班生活的气息,该项目用材用料都别具匠心,高端定制,尽显奢华享受。




项目特点三:房屋年增值率高达11.1%,高于均值6.4%


该项目其平均价格增长率为11.1%。这一增长率的表现优于整个Indooroopilly住宅市场,而同期房屋中房价年均上涨6.4%

展开

项目图片

左右滑动加载图片,点击可放大

项目位置

该项目位于布里斯班东区,距离布里斯班市中心仅9公里,距离Carindale大型购物中心仅3公里。各种餐厅娱乐设施齐全,医疗教育资源成熟,仅需车程15分钟就可以到达布里斯班国际机场,距离布里斯班最好的一些公立和私立学校仅需10分钟。


展开

位置图

左右滑动加载图片,点击可放大

周边设施

  • 交通

    布里斯班市中心 - 15分钟车程

    黄金海岸冲浪者天堂 - 45分钟车程

    布里斯班国际机场 - 15分钟车程

  • 教育

    昆士兰大学 - 16公里

    格里菲斯大学 - 10公里

    布里斯班州立高中 - 10公里

    昆士兰科技大学(Kelvin Grove校区) - 12公里

  • 医疗

    Carindale医院 - 3公里

    Greenslopes医院 - 9公里

    Mater私人医院 - 8.5公里

  • 购物

    Westfiled Carindale大型购物商场 – 6分钟车程

    Cannon Hill Plaza购物中心– 4分钟车程

    Gasworks Plaza购物中心 – 19分钟车程

展开

推荐户型

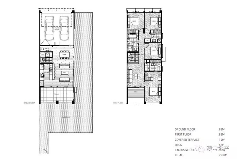
  • 户型1
    户型1
    4房2.5卫双车库
    223平米
    72 - 105万澳元
  • 户型2
    户型2
    4房2.5卫双车库
    235平米
    72 - 105万澳元

投资前景

高尔夫球场社区提供的高品质生活,Indooroopilly是布里斯班两个顶级高尔夫球场的所在地,它们分别是 Indooroopilly高尔夫俱乐部和圣露西亚高尔夫俱乐部。我们的研究表明,这两个球场共有73个住宅,在这种情况下,我们在过去的二十年中对这些特性进行了分析,以便对其投资前景进行详细的规划。这项研究表明,在这段时间内,已经有31个永久产权房屋转售,其平均价格增长率为11.1%。这一增长率的表现优于整个Indooroopilly住宅市场,而同期房屋中房价年均上涨6.4%。


展开