您的位置是:首页>房产>布里斯班

汉密尔顿区静美河景公寓

类型   公寓

位置   布里斯班 Hamilton

价格   全部售罄

交房   现房

项目介绍

特点一:一线永久性河景,近皇家高尔夫球场

该项目位处澳大利亚昆士兰州首府布里斯班北部的Hamilton区,该区域是布里斯班著名的白人富人区。该区域距离市中心约6公里,整个项目依布里斯班河600米长的河岸而建,拥有2.5公顷公用绿地以及长逾1.5公里的步道和自行车道,并毗邻昆士兰皇家高尔夫球场,环境翠绿静谧,生活空间辽阔舒适,风光独好且与众不同。该公寓设计新颖,品质高端,是城区内极为罕有的优质住宅项目。


特点二:一流社区设计规划,配套设施齐全

公寓所在社区经总体规划,业界口碑良好,总价值超过7亿澳元。与此同时,整个社区地处昆士兰最大旧城改造项目Northshore Hamilton的一部分,项目由多位澳洲优秀的建筑师设计,住宅风格多样,同时包含联排别墅和公寓项目,超过600余住户在此安家。


特点三:就业住房需求量大,空置率低于布里斯班平均水平

该项目位于满足基本娱乐生活的同时,社区内和谐安静,与河岸对面的CBD主城区遥遥相望的同时,又可以远离城市喧嚣,是城区内少有的静美安逸容身之所。

由于该项目紧邻昆士兰地区最大就业区:布里斯班CBD和Australia Trade Coast (ATC), 就业需求大,生活气息浓厚,僻静安逸的居住氛围多年来深受本地居民以及国际投资客喜爱。

展开

项目图片

左右滑动加载图片,点击可放大

视频介绍

项目位置


此项目毗邻各大交通要道,经仅3分钟车程的高速公路Gateway Motorway的更可直达黄金及阳光海岸,地处布里斯班最负盛名的传统白人富人区的黄金地段, 毗邻皇家昆士兰高尔夫球场, Brisbane River及Northshore 海滨公园, 是一个集公寓及别墅于一身的大型发展项目。

此外,政府对Hamilton及周边地区的基础设施投资109亿澳元,这其中包括了该项目所在的Northshore Hamilton旧城区改造项目。

在公共交通方面,除了便捷的公交火车路线以外,该项目步行距离200米可直达轮渡码头,乘坐CityCat城市游轮作为去往布里斯班CBD,现场购票即可直达布里斯班市中心以及昆士兰大学和昆士兰科技大学,方便快捷。为上班族和学生提供了更优质的交通方式。



展开

位置图

左右滑动加载图片,点击可放大

周边设施

  • 交通

    布里斯班市中心 - 7公里

    布里斯班机场 - 9.8公里

    距离Hamilton轮渡码头 - 200米

    距Portside码头 - 1.5公里

  • 教育

    昆士兰大学 - 14公里

    昆士兰科技大学 - 10公里

    汉密尔顿州立中学 - 2.5公里

    St. Margaret's Anglican女子学校 - 5公里

  • 医疗

    步行到达社区医疗中心和牙科门诊

    皇家布里斯班女子医院 - 9公里

  • 娱乐

    布里斯班网球场

    昆士兰皇家高尔夫球场

    Doomben 跑马场

  • 公园

    北岸河滨公园 - 30米

    汉密尔顿公园- 2.2公里

  • 购物

    Woolworths、Coles与IGA超市步行即达

    Eagle Farm市场 - 2.4公里

    皇后街购物中心 - 7公里

    Centro Toombul购物中心

展开

推荐户型

  • 户型1
    户型1
    1房1卫1多媒体室1车库
    60平米
    44.5万澳币
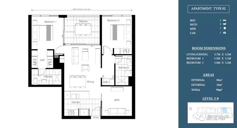
  • 户型2
    户型2
    2房2卫1多媒体室1车库
    94平米
    60.25万澳币
  • 户型3
    户型3
    3房2卫1车库
    98平米
    62万澳币

投资前景

该项目是集优质教育医疗体系,休闲娱乐设施,购物公园体系集一体的资源配套齐全的稀缺河景公寓,满足绝大数住户的生活所需。项目周围一边是Hamilton公园,另一边是海港码头 (Portside Wharf),更有北岸 (North Shore) 众多购物中心,餐饮和娱乐项目都近在咫尺。这里为您提供最优雅的生活方式。

与此同时,政府投资的河滨开发区将为您的投资护航,迄今为止整个项目的销售额超过3.1亿澳元,销售均价超过67万澳元, 61笔房屋成交价超过100万澳元,是布里斯班富人区Hamilton最为著名的高端小区代表,投资前景十分可观,是布里斯班城区内自住和投资的优质选择。


展开