您的位置是:首页>房产>黄金海岸

富人区三层联排别墅

类型   联排别墅

位置   黄金海岸 - 希望岛

价格   全部售罄

交房   2018年底

项目介绍

该项目位于黄金海岸的希望岛,项目将规划建成一个新社区,包括25套三层联排别墅。独一无二的设计与质量,每个细节都经过精心的考量,每个别墅包括3个卧室和1个书房。巧妙的布局设计不仅满足现代生活的所有需求,同时也提供了很好的私密性,大家庭可以居住于不同的楼层,轻松舒适,互不干扰,独特的设计也为以投资为目的的客户提供了更大的投资回报。


项目外观的卓越设计也赋予了产品独特的个性,使整个社区有别于周边过于紧凑的同类联排别墅产品,简约时尚又不失典雅。室内配有欧洲顶级的陶瓷和厨房配置,开放式厨房,宽敞的起居室,以及豪华的不锈钢家电用品等。小区的景观园林设计很好的和自然景观融为一体,同时还设有公共休闲区域烧烤区。


展开

项目图片

左右滑动加载图片,点击可放大

项目位置

黄金海岸希望岛位于Coomera River出海口,是集高尔夫、冲浪、三大主题娱乐城、世界最大游艇会、6 星级酒店于一身的顶级奢华高尚区。住在这里的居民可方便地享用希望岛度假村游艇会, 神仙湾餐饮休闲设施和至少三个锦标赛标准的高尔夫球场。


希望岛上坐落着豪华的四星级和五星级度假村,它们与顶级高尔夫球场齐名,可让您尽享极致奢华的住宿体验。希望岛的整体地区布局、街道设施均经过精心规划,加上游艇码头与高尔夫球场等顶级配套,形成高尚雅致的居住氛围。


展开

位置图

左右滑动加载图片,点击可放大

周边设施

  • 交通

    神仙湾 - 开车10分钟

    梦幻世界 - 开车14分钟

    冲浪者天堂 - 开车30分钟

  • 教育

    Coombabah公立小学

    Coomera Anglican私立学校

    Helensvale公立学校

    St. Stephen私立学校

    St Francis Xavier私立学校‎

    Helensvale公立小学‎

    格里菲斯大学

  • 医疗

    黄金海岸私立医院 - 9公里

    黄金海岸医院(未来澳洲最大的医院) - 13公里

    太平洋私立医院 - 13公里

    Allamanda私立医院 - 14公里

  • 娱乐

    高尔夫球场

    各主题公园

  • 购物

    便民区 - 900米

    在建商业购物区 - 5分钟步行

    在建Coomera超大型购物中心 - 15分钟车程

    Helensvale西田购物中心 – 15分钟车程

    罗宾娜区域大型商场 – 20分钟车程

    太平洋大型购物商场 – 30分钟车程

展开

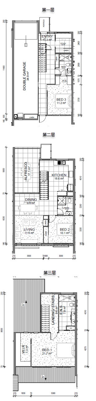
推荐户型

  • 三层户型
    三层户型
    3卧室+1书房 3卫浴 2车库
    216平米
    64万澳元